Reserva Montoya

  • Masterplan
  • 2023

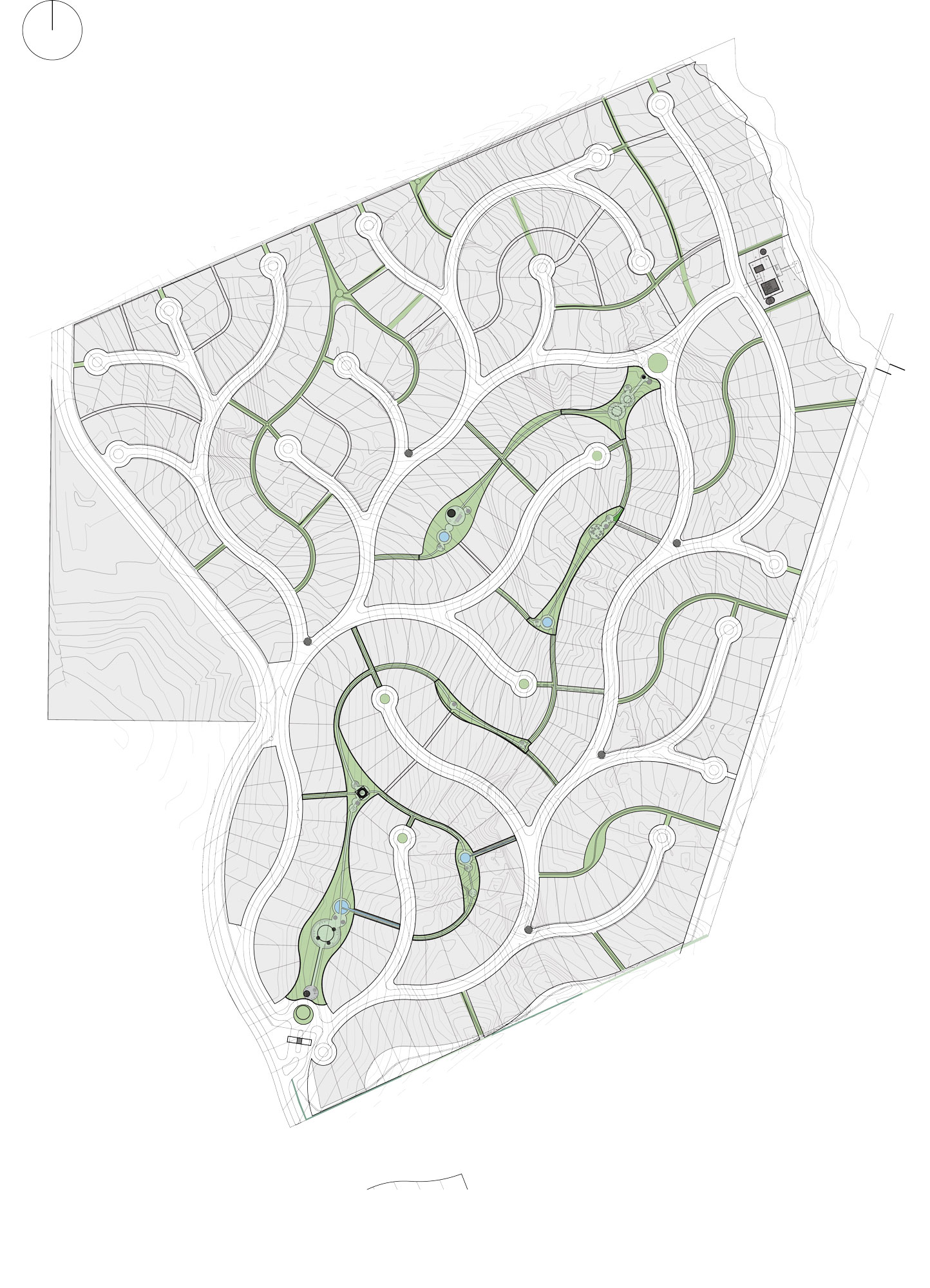
La intervención paisajística desarrollada por Bulla en Reserva Montoya parte del entendimiento profundo del territorio como un sistema vivo, dinámico y complejo. Proyectar en este contexto implica, como primer gesto, tomar distancia para ampliar la mirada: alejarnos del sitio puntual para comprender el paisaje en su totalidad, sus procesos ecológicos, sus escalas y sus relaciones. Esta lectura territorial inicial permite reconocer y poner en valor las distintas unidades de paisaje que estructuran Reserva Montoya: la pradera abierta, el pinar, el juncal asociado a los bordes húmedos y el eucalyptal como masa forestal consolidada.

El proyecto de paisaje se concibe como una sucesión de experiencias en la naturaleza, donde cada unidad de paisaje ofrece un carácter propio y una forma particular de habitar el territorio. La propuesta se apoya en una intervención botánica sutil y estratégica, construida a partir de una paleta vegetal acorde a la fisonomía, el suelo y las condiciones ambientales de cada ambiente. Esta estrategia permite reforzar identidades preexistentes, minimizar impactos y favorecer la adaptación y el bajo mantenimiento a largo plazo.

Desde una mirada ecológica, el proyecto integra el diseño de corredores biológicos que fortalecen la biodiversidad local y garantizan la continuidad de los flujos ecosistémicos existentes. Estos corredores no solo permiten el desplazamiento de fauna y la conectividad entre ambientes, sino que también contribuyen a la provisión de servicios ecosistémicos fundamentales, como la regulación hídrica, la mejora microclimática y la consolidación de bordes naturales.

Unidades de paisaje

Distintas unidades de paisaje estructuran Reserva Montoya: la pradera abierta, el pinar, el juncal asociado a los bordes húmedos y el eucalyptal como masa forestal consolidada.

Proyecto (5)

Los recorridos peatonales y las áreas de uso público se integran cuidadosamente al paisaje, promoviendo una relación cotidiana y directa entre los habitantes y la naturaleza. El diseño prioriza la lectura clara del territorio, la orientación y la accesibilidad, favoreciendo un uso respetuoso y consciente del entorno natural.
El Club House se plantea como una pieza arquitectónica y paisajística de fuerte carácter, capaz de ordenar el espacio y convertirse en un punto de encuentro social integrado al paisaje. Su implantación y relación con el entorno natural refuerzan la idea de pertenencia al sitio, estableciendo vínculos visuales y funcionales con las distintas unidades de paisaje. El muelle, como extensión del Club House hacia el borde natural, se concibe como un elemento de transición entre tierra y agua, potenciando la experiencia del paisaje y el contacto directo con el ecosistema.
El Área y Club de Deportes se desarrollan como un sistema organizado de espacios abiertos y equipamientos que dialogan con el entorno, evitando gestos artificiales y priorizando la integración paisajística. Estas áreas se consolidan como polos de actividad que conviven armónicamente con la naturaleza, reforzando el carácter comunitario y recreativo del proyecto.

01
02
03
04
05

Ficha técnica

  • 60 hectáreas
  • 400 metros de costa sobre Laguna
  • 400 metros de distancia a la playa
  • 384 lotes

Forografías (15)

Para Bulla, proyectar en Reserva Montoya significa poner en valor las cualidades intrínsecas del territorio, entendiendo al paisaje no como un escenario, sino como un actor principal. La naturaleza se incorpora al proyecto como experiencia, estructura y oportunidad, consolidando una propuesta que articula diseño, ecología y vida cotidiana, y que posiciona al paisaje como un valor central del desarrollo.

01
02
03
04
05

Créditos

Equipo
Bulla

Ubicación
La Barra, Departamento de Maldonado, Uruguay

Año
2023

Arquitectura (equipamientos comunes — Clubhouse, acceso y áreas deportivas):
MAPA

Planificación y diseño del paisaje:
Bulla.

Masterplan urbanístico:
ROBIROSA.

Desarrolladora / Promotores:
Ardax S.A. — con Jorge de León Meneses (Uruguayo) y Nicolás M. Gassiebayle (Argentino).

Interiorismo:
Joanne Cattarossi Estudio.

Iluminación escenográfica:
AOPI (Arturo Peruzzotti).

Fotografía 
Arq. Belén Maiztegui
Bulla, dron